CEATEC

  1. TOP
  2. 出展ガイド
  3. 出展規程
  4. 一般展示(General Exhibits)出展規程

Guide for Exhibitors一般展示(General Exhibits)出展規程

一般展示(General Exhibits)出展規程
PDFダウンロード

1. エリア構成と仕様比較

区分 一般展示(General Exhibits)
エリア特性 自由なブース設計により、自社の技術・製品・サービスを幅広く発信できる出展エリア
参加規格 スタンダードブース スモールパッケージブース
出展対象 企業/団体(出展規程 5-1. に定める「出展対象」に準ずる法人等)
ブース位置選択 (出展申込の先着順による選択制)
ブースの規格 1ブースあたり
間口3m×奥行3m
1ブースあたり
間口2m×奥行2m
ブースの高さ制限 ブース規模に準じる
4. 申込ブース数・高さ制限表」をご参照ください
2.7m
パッケージブースの提供 ×
申込可能単位 1〜100ブース 1〜2ブース
出展参加料(消費税込) 主催・共催団体会員 396,000円/ブース
上記以外 440,000円/ブース
220,000円/ブース
一次幹線工事費+電気使用料 ×
13,200円(消費税込)/kWを別途申込

1kW/ブースまで無料
出展者バッジ
15枚/ブース

15枚/ブース
作業員リボン
5枚/ブース

5枚/ブース
案内状(申込制)※無料分
ブース規模に準じる

1,000枚
オープニングレセプション招待枠
ご招待枠数はブース規模によって異なります

3名
会場マップへのロゴ掲載
出展規模が20ブース以上の場合のみ
-
コンファレンス(500名)登壇枠 × ×
パーク内ステージ(100名)登壇枠 × ×
メディアパートナーによる事前取材 - -
来場者データ読み取りシステム × ×
メールマガジン広告 × ×
WEBバナー広告(ノーマルバナー) × ×

×と表記がある箇所については別途有料にてお申込みいただくことで該当のサービスをご利用いただけます。

2. 出展料・プラン

2-1. 一般展示(General Exhibits)

♦スタンダードブース出展料
参加スペース:1~100ブースまで出展できます。
1ブースにつき次のとおりとします。 主催・共催団体会員 396,000円/ブース(消費税込)
一般企業/団体    440,000円/ブース(消費税込)
♦スモールパッケージブース出展料 1ブース 220,000(消費税込)
2ブース 440,000(消費税込)

展示会場内にて、出展者に貸し出す空間をブースならびに小間と呼びます。

主催・共催会員は、一般社団法人電子情報技術産業協会(JEITA)会員、一般社団法人情報通信ネットワーク産業協会(CIAJ)会員、一般社団法人ソフトウェア協会(SAJ)会員です。(賛助会員等を含む)

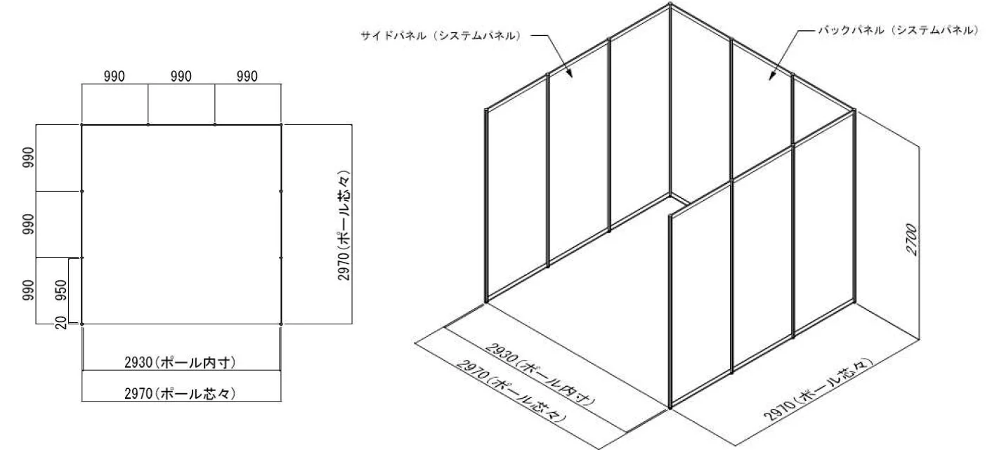
  1. スタンダードブース
    1ブース~18ブース(1列~4列ブースの規格)
    スタンダードブース 1ブース~18ブース(1列~4列ブースの規格)
    画像クリックで拡大してご覧いただけます
    1. 1ブースの規格:間口3m×奥行3m
    2. 背面となる面のシステムパネルおよび他社と隣接する面のパネルを基礎パネルとして設置します。なお、角ブースの通路側のシステムパネルと、独立ブースとなるブースにシステムパネルは設置しません。
    3. 床面カーペット、社名板、その他部材、装飾等は出展者でご用意いただきます。
      別途ご案内の各種パッケージブースをご利用いただくことも可能です。
    4. 1~18ブースで出展の場合は、ブースの1辺~3辺が他社と接する場合があります。
    5. 接する他の出展ブース側に向けて社名やロゴを入れることは禁止します。
    20ブース以上(ブロックブース)
    1. ブロックブースの規格は1ブースの面積を9m²とします。
    2. ブース寸法は、9m²×ブース数分の総面積より間口:奥行を2:1から1:1の範囲とし、ブース寸法の詳細は事務局発行の図面に記載します。
    3. 出展者は、指定のスペースに対してカーペット等を設置し、来場者が通路とブースの境界線を視認できる施工をしてください。

    ブース施工時の高さ制限は「4. 申込ブース数・高さ制限」をご参照ください。

  2. スモールパッケージブース
    1. 1ブースの規格:間口2m×奥行2m×高さ2.7m
    2. 装飾仕様
      • 展示台(奥行990mm×高さ975mm 下部収納付)
        下部収納には鍵がついておりませんので、出展者自身にて荷物の管理をお願いします。
      • 基礎壁面
      • 社名カッティングシート
      • 社名掲出用パラペット(幅300mm)
      • 1次側幹線工事及び電気使用料(1kW まで無料)
      • コンセント(容量1kWまでの単相100V 電源)
      • LEDシームレスライト
    3. 1社につき、申込数は2ブースを上限とします。

    パッケージブースの変更(パネルサイズの変更・取り払うことを含む)や周囲に影響を及ぼすブースの施工は不可となります。

    スモールパッケージブース
    画像クリックで拡大してご覧いただけます

3. 出展料に関する事項

3-1. 出展ブース料に含まれる経費

出展者バッジ 15枚/1ブース
規定配布枚数を超える場合は1,650円/枚(消費税込)にて追加購入可
作業員リボン 5枚/1ブース
規定配布枚数を超える場合は550円/枚(消費税込)にて追加購入可
案内状(申込制) 1~3ブース
4~8ブース
9~12ブース
15~20ブース
以降 5ブース あたり
1,000枚まで
2,500枚まで
4,000枚まで
6,000枚まで
1,200枚ずつプラス
規定配布枚数を超える場合は330円/枚(消費税込)にて追加購入可
オープニングレセプション招待状 1~3ブース
4~8ブース
9~12ブース
15~20ブース
以降 5ブース あたり
3
5
10
15
2名ずつプラス

詳細は、後日(7月)配布する「出展者マニュアル」をご参照ください。

3-2. 出展料以外に必ず発生する経費

基礎パネル以外のブース装飾および下記の経費は出展料に含まれておりません。

1次側幹線工事費(電気使用料含む)

ブース内のコンセント等の二次側工事費は含まれません。

スモールパッケージブースには出展料に本費用が含まれています。

13,200円/kW (消費税込)

3-3. その他有料オプションメニューについて

ユーティリティブース(9㎡) 1棟 264,000(消費税込)
パッケージディスプレイ 110,000(消費税込)
来場者読み取りシステム 30,800(消費税込)〜(※)
インターネット回線 110,000(消費税込)〜(※)
特別招待券 3,300円/枚(消費税込)〜(※)

上記は例年お申込みの多いオプションメニューの一例を2025年度ベースの参考価格として掲載させていただいております。オプションメニューの詳細は後日(7月)配布する「出展者マニュアル」をご参照ください。

4. 申込ブース数・高さ制限

4-1. 一般展示(General Exhibits)

ブースの種類 ブースの形態 申込ブース数 高さ制限
基礎パネルの高さを2.7mとして、以下の範囲での高さ超過が認められます。
スタンダードブース 1列ブース 1, 2, 3, 4, 5, 6 通路および基礎パネルより1mセットバックした部分は、高さ3.6mまで使用可能。
2列ブース 4, 6, 8, 10
3列ブース 9, 12, 15, 18 通路および基礎パネルより1mセットバックした部分は、高さ6mまで使用可能。

団体出展において申込ブース数が2列ブース形態で20ブース以上となる場合は、3列・4列ブースの高さ制限を適用。

4列ブース 16
ブロックブース 20, 25, 30, 35, 40, 45, 50, 55, 60, 65, 70, 75, 80, 85, 90, 95, 100 全面高さ6mまで使用可能です。ブロックブースについては高さ6m以下での吊構造が可能です。なお、吊構造の設置場所は、会場(幕張メッセ)への事前確認が必要です。
スモールパッケージブース 1列ブース 1, 2 2.7m
  1. 1列から4列ブースは、1辺~3辺が他社と接する場合があります。
  2. 共同出展または業界団体による出展の場合は、申込上限の100ブースを超えて申し込むことができます。
    100ブース以上のお申込みをご希望の場合はCEATEC運営事務局までご相談ください。
  3. 申込締め切り後、実行委員会において会場構成等を審議し、会場の収容力が不足する場合は、公平な基準を設け、各出展者のブース数を申込数より削減して割り当てる調整を行うことがあります。その際は、出展者の皆様にはご了承願います。

出展物および装飾物の高さの制限は上記のとおりとします。ただし、出展物の特性上高さが制限を超える場合は、後日、CEATEC 運営事務局に「出展製品の高さ超過申請書」とブース設計図(平面図・立面図)を提出し、実行委員会の許可を受けてください。この場合、出展物は自社ブース内(通路および基礎パネルより1m セットバックした部分)に展示することとし、通路上の空間等にはみ出すことはできません。高さ超過の許可を受けた出展物に社名・製品名等の装飾を施すことを禁止します。

ブースの形態 高さ制限

ブースの形態

■ブロックブース

ブロックブースは1ブースの面積を9m²とし、9m²×ブース数分の総面積より間口:奥行を2:1から1:1の範囲で墨出しします。寸法についてはブース位置選択会時の図面にて指定します。なおブース寸法のご要望はお受けしかねますのでご留意ください。

●25ブースで申し込んだ場合の寸法例

総面積225m²(9m²×25ブース)間口を広く取った長方形から正方形になる間で寸法を計算し、墨出しします。

ブースの形態

高さ制限

上図はブースを上から見た場合の平面図になります。

5. 出展対象・ブース位置の決定・出展申込および契約

5-1. 出展対象

CEATECには、次の各業種の出展対象製品を取り扱うまたは、関連する事業を行う以下の法人等が出展できます。

  1. IT及びエレクトロニクス機器関連
  2. 電子部品、デバイス、材料、素材、装置関連
  3. 放送・情報通信関連
  4. ソフトウェア・コンテンツ関連
  5. 自動車、モビリティ関連
  6. 公共インフラ関連
  7. ヘルスケア関連
  8. エネルギー関連
  9. 金融関連
  10. 農林関連
  11. 機械・製造関連
  12. 建設関連(ディベロッパー)
  13. 上記①~⑫を取り扱う商社・卸売業関連
  14. 物流・運輸関連
  15. 流通・小売業関連
  16. アパレル関連
  17. スポーツ関連
  18. 観光関連
  19. サービス関連
  20. 新聞・雑誌等の出版社
  21. 教育・研究機関
  22. 行政機関(自治体等)・行政法人・公益法人・非営利法人・公共団体・業界団体
  23. 主催会員/共催会員
    一般社団法人電子情報技術産業協会(JEITA)
    一般社団法人情報通信ネットワーク産業協会(CIAJ)
    一般社団法人ソフトウェア協会(SAJ)
  24. その他実行委員会(「6-22. 実行委員会」参照)が認める企業/団体

出展対象の法人等や過去に出展実績のある法人等においても、出展規程や各種マニュアルに定める規程に違反した場合、あるいは実行委員会(「6-22.実行委員会」参照)が来場者や他の出展者へ悪影響をおよぼすと判断した場合、その他、実行委員会が不適当と判断した場合は、出展申込の受理または出展契約締結の前後にかかわらず、出展をお断りする場合があります。その場合、既に払い込まれた出展料については全額返却します。(「5-3. 出展申込および契約」参照)

5-2. ブース位置の決定 ※対象:一般展示(General Exhibits)

  1. ブース位置の決定
    ブース位置は実行委員会で決定したブース選択用図面の指定箇所より、7月に開催される「ブース位置選択会」で選択をしていただきます。ブース選択用図面は、説明会に先立ち出展担当者へCEATEC運営事務局より事前にご案内します。なお、選択順位は出展申込受付順で決定します。
    一般展示(General Exhibits)における同規模・同形態の出展について、出展申込の受付日時が同時刻の場合、ブース位置選択の順番は抽選にて決定いたします。(例:10ブースにて、A社とB社の2社が2月12日 10時00分00秒にお申込みをされた場合)5月1日(金)以降にお申込いただく場合、優先出展申込期限である4月30日(木)までにお申込いただいた出展者のブース位置を確定後、この予備ブースの中から申込フォームを送信いただいた順番に会場図面の指定箇所より選択をしていただきます。

    ブース位置決定に関する注意

    • 出展申込状況に基づき会場エリア構成を行います。エリア構成は実行委員会で決定します。
    • 来場者動線、避難動線または搬出入の安全性の確保などの観点から、及び、会場ブース構成を円滑に進めるため、ブロックブース等はブース位置選択会に先立ち、申込フォームを送信いただいた順番で事前にブース位置を決定する場合があります。
    • ブース位置決定後もブース割図面を変更し、それに関連してブースを再配置することがあります。
  2. 予備ブース
    4月30日(木)までに募集ブース数に満たなかった場合、残りのスペースを予備ブースとして配置します。
  3. 固定ブース
    以下のブースは実行委員会により、あらかじめブース位置を決定させていただくことがあります。
    1. 国内関連団体のブース
    2. 海外協力団体のブース
    3. 主催者企画ブース
  4. 出展申込期限である5月29日(金)後の出展エリアの変更は原則としてお受けできません。

5-3. 出展申込および契約

CEATEC公式WEBサイトの「出展申込フォーム」に必要事項を入力のうえ送信(お申込)してください。お申込後、CEATEC運営事務局である一般社団法人日本エレクトロニクスショー協会(以下「当協会」と呼称することがあります)より、E-mailにて受理の返信がされた時点で出展申込・契約が完了します。受理確認連絡に記載された期日を出展契約締結日とし、出展者は出展料の支払義務を負うものとします。

  1. 出展申込フォーム(出展申込書)

    CEATEC 公式WEBサイトよりお申込みください。
    https://www.ceatec.com

  2. 申込受付開始

    2026年212日(木)午前10時

    受付開始前の申込は受付できません。

  3. 優先出展申込期限

    2026年430日(木)

    優先出展申込期限までに申込されると、7月に開催予定の「出展者説明会/ブース位置選択会」に参加でき、申込順に優先してブース位置を選択できます。(「5-2. ブース位置の決定」参照)

    申込ブース数が募集ブース数に達した場合は優先出展申込期限前であっても出展募集を締切る場合があります。

  4. 出展申込期限

    2026年529日(金)

    締切以降も募集ブースが満ブースになるまで随時募集を受け付けますが、満ブースになり次第、受付を終了します。

  5. 2社以上の会社が共同で出展する場合
    1社が代表して出展申込および出展料の支払いを行ってください。なお、共同出展予定の会社情報については、出展申込後に所定のフォーム(7月提供予定)にて必要事項をご提出ください。
  6. 出展申込の拒否
    破産・和議・会社整理・民事再生法または会社更生法手続き中である者、金融機関から当座取引停止処分を受けている者、反社会的行為を行い若しくはこれに関与している者、または業務停止命令等の行政処分を受けた者の申込は受理しません。また、当協会が上記に等しいと認めた場合も同様とします。なお、契約締結後であっても、出展者が上記に該当した場合には、契約を破棄し出展をお断りします。その場合、既に払い込まれた出展料については全額返却します。当協会は、上記に関連して必要と認めた場合、調査および審査を行う場合があります。
  7. 申込締め切り後、実行委員会において会場構成等を審議し、会場の収容力が不足する場合は、公平な基準を設け、各出展者のブース数を申込数より削減して割り当てる調整を行うことがあります。その際は、出展者の皆様にはご了承願います。

5-4. 出展料の払い込み

出展料は、「一般社団法人日本エレクトロニクスショー協会」からの請求により、以下の期限までに指定の銀行口座にお振り込みください。(指定口座は請求時にご案内します。)なお、手形によるお支払いはお断りします。また、振込手数料および振込に際し発生するそのほか全ての手数料は、出展者の負担とさせていただきます。また、上記「2. 出展料・プラン」のとおり出展プランを分類していますが、ご請求の際は、「出展料」に統一してご請求します。

出展料払い込み期限 2026年6月30日(火)

5-5. 出展の取消および申込みスペースの削減

申込後、出展者の都合により出展を取り消す場合、あるいは申込数を削減する場合は、次の金額を申込解約金として申し受けます。
解約金には消費税を加算します。

2026年6月1日(月) ブース料の100%

取り消し等の意思表示は、事務局が指定する書面の郵送、E-mailでの受付となります。当協会にて確認の返信をした時点で有効となります。

5-6. 出展料以外の払い込み

出展料以外の諸費用は、以下の期限までに指定の銀行口座にお振込みください。(指定口座は請求時にご案内します。)なお、手形によるお支払いはお断りします。振込手数料は、出展者の負担とさせていただきます。また、請求元については、後日(7月)配布する「出展者マニュアル」でご案内します。

出展料以外の払い込み期限 2026年12月31日(木)

6. 出展に際しての留意事項/禁止事項 等

6-1. 工業所有権に関する出願前出展物について

出展製品の公開・発表に際して「特許」、「実用新案」又は「商標」出願を検討する出展者においては、直接特許庁・総務課までお問合せください。

6-2. 禁止行為

次の行為は禁止行為に該当します。

  1. 出展スペースの転貸、売買、譲渡、交換
    出展者は、相手が他の出展者あるいは第三者であることを問わず、出展ブースの一部あるいは全部を転貸、売買、譲渡、交換することはできません。
  2. 別会場への誘導を目的とした出展
    主催者の実施する特別企画以外において、本展示会場以外の場所で主要な製品の展示やセミナーなどを行い、本展示会の来場者を当該別会場へ誘導することを目的とした出展はお断りします。
  3. 出展物の即売
    出版物、ソフトウェア製品を除く出展物の即売を禁止します。なお、出版物、ソフトウェア製品の即売を行う場合においても、その内容につき出展お申込の際に当協会の承諾を得てください。
  4. 迷惑行為
    ブースの外側の空間および通路上における来場者に対する強引なブースへの誘導やデモンストレーション、来場者のQRコードを読み取る行為は禁止します。また、極端に執拗な製品説明なども迷惑行為と見なし、禁止する場合があります。
  5. 個人情報収集を主目的とした出展の禁止
    ブース内において、自社が取り扱う製品の展示や商品・サービスのPRをすることなく、来場者の個人情報の収集を主目的として行う出展は禁止します。また、すべての出展者にも個人情報保護法の用件を満たした行為や対応をお願いします。来場者の個人情報の収集および取り扱い、利用について遵守すべき内容については、後日(7月)配布する出展者マニュアルでご案内します。

6-3. 出展者の責任

  1. 支払いの責務
    出展者は当協会が請求する出展料ならびに諸経費の支払いにつき、その支払いが完了するまでその責を負うものとします。
  2. 法令の遵守
    出展者は各自日本国の法令を遵守するものとします。
  3. 損害責任・管理責任・保険
    1. 主催者(一般社団法人電子情報技術産業協会をいう、以下同じ)、実行委員会および当協会は、期間中における会場の管理・保全については、警備員を配置する等、事故防止に最善の注意を払いますが、天災、火災、盗難、紛失、その他不可抗力により、人身および物品に対する傷害・損害が生じた場合、その責任を負いません。したがって、盗難防止等の措置を独自で施すことをお勧めします。
    2. 出展者が会場において、来場者、他の出展者およびその他第三者に対し人身または物的損害を生じさせた場合には、当該出展者の責任とし、主催者、実行委員会および当協会は何ら責任を負わないものとします。各自にて保険への加入をお願いいたします。
    3. 出展者はブースの管理責任者を当協会に事前申請することとし、管理責任者は、会期の全期間について、自社ブースで行われる作業や運営に立ち合ってください。
    4. 出展者は出展物等に保険を付すなどの措置をとるようにし、独自の管理を行ってください。
    5. 当協会は会場の管理、保全、秩序の維持、並びに来場者の安全に万全を期しますが、これらに支障をきたすと判断した実演については、出展者に対して必要な対策を依頼し、実演の制限、または中止を求めることがあります。出展者の実演により万一事故が生じた場合、主催者、実行委員会および当協会は責任を負いません。該当出展者は直ちに必要な措置をとるとともに当協会まで連絡してください。
  4. 開催スケジュールの遵守
    出展者は搬入・開催スケジュール・搬出について、当協会の指定する日時を遵守することとし、開催期間中は一切の搬出作業を行わないものとします。

6-4. 不可抗力による開催中止 ・ 短縮

  1. 地震・台風・火災等の天災、感染症、テロ、第三者からの指示・命令、その他不可抗力(以下、これらを「不可抗力」といいます)により展示会開催が著しく困難となった場合、主催者は開催前または開催期間中であっても、開催中止または開催期日・開催時間の短縮等を行うことがあります。その場合、主催者が上記の決定を行った後、速やかに出展者に通知し合わせてホームページ等を通じ公表することとします。なお、この決定および実行により被る出展者の損害ついては、主催者、実行委員会および当協会は一切の責任を負わないものとします。
  2. 開催日初日より前に、不可抗力により全日程が開催中止となった場合、当協会は弁済すべき必要経費を差し引いた出展料の残額を出展者に返却します。
  3. 開催日初日以降に、不可抗力により、開催期日・開催時間を短縮した場合、また、開催を中止した場合については、出展料は返却しません。
  4. 不可抗力による開催中止または短縮のため出展者が要した費用等については補償しません。

6-5. 取材・撮影

実行委員会または当協会が指定したスタッフが会場内の取材・撮影を行います。出展者は、取材、撮影に協力し、かつ、実行委員会または当協会が認めた団体が本展示会の広報・宣伝活動のため出展内容および運営・出演スタッフ(協力関係会社スタッフを含む)の映像、画像、記事等を使用することを承諾するものとします。

6-6. 出展者間の紛争の処理

出展者と他の出展者との間で生じた出展物または出展物に関する広告および知的財産権並びにブースの使用に関する紛争、その他すべての紛争は関係する出展者間で解決されるものとし、主催者、実行委員会および当協会は何らの責任も負わないものとします。

6-7. ブース設計

展示・実演に関わる全ての行為は自社ブース内で行うこととします。
特に下記の内容に違反した場合、実行委員会または当協会より改善要求をします。改善されない場合は、出展を中止させていただく場合があります。

  1. ブース外スペースの使用禁止
    1. ブース周囲の通路に来場者を多数滞留させることはできません。ステージ等を設置する場合は、ブース内に来場者を収容して見学できるようなブース設計を行ってください。
    2. ブースの規格外に出て、来場者の誘引、来場者に対するアンケート行為及びこれに類する行為はできません。
    3. ブース周囲の通路およびブース規格外の空間を利用してのプレゼンテーション行為は一切禁止します。また、ブース周囲の通路およびブースの裏側を利用した出展物、装飾物、カタログ、備品、植木、梱包材等の設置や来場者の待機列の設置はできません。
      上記規程に違反した場合、実行委員会にて確認の上、改善勧告を行い、出展者はこれに従わなければなりません。
      度重なる勧告によって改善が見られない場合はスペース利用分の出展料を請求させていただく場合がございます。
      待機列の作り方の良い例、悪い例の画像
      画像クリックで拡大してご覧いただけます
    4. 照明を通路や会場壁面または天井等へ投影する行為は禁止します。
  2. ステージならびに映像装置の設置
    ブース内に製品プレゼンテーション等を行うためのステージならびに映像装置を設置する場合は、来場者が通路に滞留しないよう、必ずブース内に来場者を収容する十分な視聴スペースを確保してください。
    また、ステージならびに映像装置の設置高さによる来場者の視野角と適正な視聴距離にも十分ご配慮ください。なお、会場で問題が発生した場合、改善を要求する場合があります。
    良い例、悪い例の画像
    画像クリックで拡大してご覧いただけます
  3. スピーカ設置位置の制限
    スピーカ等の拡声装置を、近隣ブースに対して正面に向けることを禁止します。必ず、通路に対して正面より内向きになるように設置してください。また、壁面や造作柱にスピーカを設置する場合は、スピーカの中心軸を垂直下方に45度以内とし、かつ自社のブースの仕切り線を超えないこととします。
    スピーカ設置位置の制限
    画像クリックで拡大してご覧いただけます
  4. 安全対策
    1. トラス等の構造柱の転倒防止のため、床への固定に際してはアンカーボルトを1箇所につき4本以上打設してください。
    2. システムパネル(オクタノルム)の設置に際しては、帆立補強、コーナー部に対するビーム補強、ウェイトの設置等で転倒防止策を講じてください。
    3. 独立什器には、壁面または床面への固定等による転倒防止策を講じてください。
    4. 映像モニタやスピーカ、チャンネル文字、照明器具、その他高所に設置する施工物の取り付けに際しては、ボルト固定やワイヤー等での落下防止策を講じてください。
  5. 隣接他社への動線
    9ブース(81㎡)以上の他社ブースと隣接していない独立ブースの設計に際しては、緊急時の避難導線の確保のため、通路に隣接する面の1/3は開放部を設けて設計してください。
  6. ブーススペース境界線
    ブーススペースに対して、カーペット等の設置により来場者が通路と境界線を視認できるような施工をするよう配慮してください。

6-8. 天井構造

展示物の性質ならびに実演の都合上、遮光・遮音等の措置を施す必要がある場合に限り、所轄消防署の承認を受けた範囲内で、防炎処理された暗幕等で天井を設置することができます。なお、会場内において直射日光は遮光できますが、間接光や天井灯が反射する恐れがありますので留意ください。
天井を設置される場合は、面積に関わらず、後日(7月)配布する出展者マニュアルでご案内する申請書に必要事項を記入の上、平面図と立面図、施工図面を添付し、ご提出ください。
設計・施工に当たっては以下の内容を遵守してください。

  1. 構造
    1. 天井が重複する構造(2重天井)は一切設置できません。
    2. 装飾に使用する素材は全て防炎処理されたものになります。装飾素材には必ず防炎シールを貼付してください。
    3. 平面図(天井部分の場所及び面積を図示したもの)と立体図(天井部分と周囲の壁等を把握できるように図示したもの)をご提出ください。また、天井部分が防炎素材使用の旨を明記してください。
  2. 消防・避難用設備等
    1. 消火器は10型以上のものをご使用ください。
    2. 自動火災報知設備(煙感知器)の設置が必要な場合があります。その場合は、業務用の自動火災報知設備を設置し、必ず設置届(設置試験結果記載のもの)を提出してください。なお、家庭用の煙感知器は自動火災報知設備とは認められません。
    3. 面積や形状によっては避難口及び避難口誘導灯(自光式)が必要になる場合があります。

6-9. 2階建て構造

2階建て構造とは上層部において人の往来があり、床からの高さが2.1m以上の重層構造となる構造物をいいます。ただし、ブース造作において2.1m以下であっても下層を通路、出展物の展示、控室等で使用する場合は2階建て構造物とみなします。
2階建て構造物の設置については、所轄消防署の承認が必要となります。
2階建てを設置される場合は、後日(7月)配布する出展者マニュアルでご案内する申請書に必要事項を記入の上、施工図面を添付して、ご提出ください。
設計・施工に当たっては以下の内容を遵守してください。

  1. 設置適用ブース
    2階建て構造物を設置できるのは、20ブース以上(ブロックブース)の出展者のみとします。
  2. 2階の床面積
    2階の床面積の上限は展示面積の2分の1までとします。
  3. 2階建て構造の高さ
    展示物・装飾物の高さはブースの規格同様、6m以下となりますので、2階建て構造物においても6m以内で設置してください。
  4. 2階の使用内容
    2階部は製品展示、商談室、控室、オペレーションルーム等としてご利用ください。2階部は、通路との境界線から内側に、最低1m離して設置してください。ただし、2階部から1階部の来場者に対してのデモンストレーションは禁止します。
  5. 設計
    2階建て構造物の設計にあたっては、2階部分の荷重計算(最大人員の想定を含む)を行い、下図を参考に行ってください。2階建て構造箇所には、天井構造の設置は不可です。
    1. 構造は鉄骨(アルミトラスも可)とし、2階部分の荷重に加え、大きな地震による地震時荷重を考慮した安全な構造設計としてください。
    2. 構造計算については、計算資料を提出してください。なお、設計の条件設定は出展者の責任において実施するものとします。※構造計算資料の提出により主催者・施設・管轄する消防署等が安全性を保障するものではありません。
    3. 後日(7月)配布する出展者マニュアルの提出書類をご提出いただく際には、構造設計者欄を必ず記入ください。
    4. 90cm以上の通路を2方向以上、設置してください。
    2階建て構造物
    画像クリックで拡大してご覧いただけます
  6. 消防・避難用施設等
    2階建て構造物には以下の内容に従って自動火災報知設備および消火設備を設置してください。
    1. 2階建て構造物には自動火災報知設備および消火設備を設置してください。また、2階には必ず消火器(10型)を設置してください。
    2. 自動火災報知設備(煙感知器)を設置する際は、必ず設置届(設置試験結果記載のもの)を当協会に提出してください。なお、家庭用の煙感知器は設置できません。
    3. 自動火災報知設備(煙感知器)は1階の天井面150㎡につき1箇所以上設置してください。但し、60cm以上の下がり壁等で仕切られた場合は、その空間毎に1個以上設置してください。
    4. 2階の床面積が200㎡を超える場合は、2階部分に設置する自動火災報知設備(煙感知器)は、総合管理センターと直結するよう施工してください。その他消火設備等の設置指示がある場合もありますので、お早めにご相談ください。
    5. 消防法の防炎表示制度により展示用合板、繊維板、カーペット、カーテン、テーブルクロス類、のぼり旗には防炎ラベルが貼付されたもの以外は使用を禁止されております。
    6. 2階の床面積が100㎡以上のときは、防火管理者(有資格者)をブース内に配置してください。

6-10. 天井吊り構造

天井吊り構造とは、会場の躯体天井からチェーンにより装飾物を吊り下げた状態でブースを施工し展示する方法です。天井吊り構造を希望される場合は、後日(7月)配布する出展者マニュアルでご案内する申請書に必要事項を記入の上、構造重量計算書・平面図・立面図を添付して提出ください。

天井吊り構造
画像クリックで拡大してご覧いただけます
  1. 設置適用ブース
    天井吊り構造を設置できるのは、20ブース以上(ブロックブース)の出展者のみとします。
  2. 吊り位置制限
    ブースの内側から垂直線以内としますが、広さ制限以内であっても、会場の放水銃の位置などにより、吊り構造の位置の変更をお願いする場合もあります。
  3. 吊り元制限
    吊り元は、原則ガセットプレートのみです。やむを得ずそれ以外の場所(大梁等)に設置を希望する場合は、早めにご相談ください。なお、重量によっては計画の変更をお願いしますので、必ず指示に従ってください。
  4. 重量制限
    1つの吊り物用ガセットプレートの重量制限は、450kg以内までです。提出する図面に、各ガセットプレートに掛かる重量を明示した図面及び各点の重量計算表を添付してください。なお、吊り構造の総重量を吊り点数で割った図面等では設置の許可は一切できません。
  5. 高さ制限
    装飾物とみなされるもの(金物造作物、木工造作物、サイン、照明器具、スピーカ、バナー、布など)は、高さ制限同様6m以下で収めてください。ただし、吊り構造トラス、チェーンモーターボックスは高さ制限外としますが、周囲の出展者の見通しを妨げない位置に設置してください。なお、装飾用トラスを吊るためのチェーンは、安全のために、装飾用トラスの上、約1メートル以内で設置してください。また、計画変更にかかる関連費用は各社でのご負担となります。
  6. その他の制限/留意事項
    装飾用トラスについては細かく分断せず、1体の構造になるよう設計してください。
    1. 装飾用トラスについては、地震の横揺れによる損壊を防ぐよう配慮し、床から建ちあがる装飾物が結合されて固定されないようにしてください。
    2. 装飾用トラスへ床から渡るケーブル等の配線については、地震の横揺れによる断線を防ぐよう配慮し、ゆとりを持たせて設置してください。
    3. 装飾用トラスに映像モニタやスピーカ・チャンネル文字・照明等を取り付ける場合は、ボルト固定やワイヤー等で落下防止策を講じてください。
    4. トラスなどの部材の色については、目立たない黒やグレーのみを使用してください。
    5. 天井吊り構造工事の作業中および会期中に吊り構造が原因で発生した事故については、天井吊り構造ブースを設置した出展者が、全ての責任を負うものとします。
    6. ブース位置を選定する際に当協会より提示する展示レイアウトに天井吊り構造が可能な区分を明示します。天井吊り構造可能区分外を選択いただき、天井吊り構造を行った際に発生した費用等は該当の出展者にてご負担頂きます。

6-11. 床面工事

床面工事を行う場合は、後日(7月)配布する出展者マニュアルでご案内する申請書に必要事項をご記入の上、施工図面を添付してご提出ください。また、施工に関しては以下の内容を遵守してください。

  1. 床面工事作業
    1. 施工当日は、作業前に必ず事務局にて、実際の打ち込み本数をご連絡ください。
      ※ブース設計上アンカーボルトを必要としない場合は、事務局でキャンセルをお申し出ください。
    2. コンクリート釘、ドライピットの使用は禁止いたします。また、ピット蓋へのアンカーボルトの打ち込みはできません。
    3. トラス等の構造柱の転倒防止のため、床への固定に際してはアンカーボルトを1箇所につき4本以上、打設してください。
    4. ブース内でカーペットを敷く場合は、両面テープで接着してください。糊付けは禁止いたします。
  2. 原状回復(復旧)
    床面工事は会期終了後、原状へ完全復旧してください。原状復旧は、頭部が床面より出ている場合は水平面までサンダーで切断してください。ハンマーによる打ち込みやガス熔断、引き抜きはできません。最終現場チェックを行った上で原状回復が十分でないと認めた場合、あるいは指示された期間内に回復されておらず、やむなく当協会が作業を代行した場合、原状回復に要した一切の費用は出展者の負担になります。
  3. 床面復旧協力費
    アンカーボルトの打ち込みに際して、太さに関係なく1律で1本につき、1,100円(消費税込)を床面復旧協力費としてご負担いただきます。

6-12. 消防法

施工期間中、または会期中、所轄消防署の査察検査があります。検査の結果、下記に違反した場合は、施工の中止、または取り壊しを命ぜられる場合もありますので記載内容を遵守してください。

  1. 防炎合板に厚い布および、ひだのある紙類を貼付する場合は、防炎性能を有するものを使用してください。ただし、うすい加工紙、布を防災合板に全面密着して使用する場合は構いません。
  2. どん帳、カーテン、展示用の合板、繊維板、布製ブラインド、暗幕、造花、じゅうたん等の床敷物、工事の際に使用する工事用シート、その他の物品は、防炎性能を有するものを使用してください。なお、これらの防炎物品には、1つ1つ防炎表示を見やすい箇所に縫いつけるか、貼り付け、下げ札等の方法をとってください。
  3. ホンコンフラワー、ウレタン、アセテート、ポリエステル、ナイロンなどは防炎性能を与えることが困難であるため使用しないでください。
  4. 発泡スチロールの使用は一切認められません。スタイロフォームなどの消防法における指定可燃物に該当しない難燃性の部材を使用してください。

6-13. 模倣品・偽造品の展示等の禁止

  1. 第三者の知的財産権(特許権、商標権、意匠権、著作権等を含みますが、これらに限りません。また、外国における権利を含みます。)を侵害する物品(いわゆる模倣品・偽造品)を展示、配布、または上映すること、その他一切の行為を禁止します。
  2. 出展物その他の物品が模倣品・偽造品に該当、または該当する可能性が高いと実行委員会または当協会が判断した場合、その裁量により当該物品の撤去等の措置を取ることができるものとします。また、出展者は、かかる措置に異議を述べないものとします。
  3. 出展者は、出展物その他の物品が模倣品・偽造品に該当するか否かに関して、実行委員会または当協会が行う調査に協力するものとします。
  4. 出展物の知的財産権に関する紛争は、出展者の責任において解決するものとします。

6-14. 比較表示

下記の比較表示を行なう場合は、原則として自社および自社関連グループ企業の商品・製品・技術等を比較することとし、他社の商品・製品・技術等と比較表示する場合は当該他社の許諾を得たうえ、他社に迷惑が及ばないよう表示してください。実行委員会または当協会はこれに反した表示を確認した場合、該当する表示の中止または、改善を求めます。この要請により生じた出展者の損害等に関して主催者、実行委員会および当協会は一切補償しません。なお、改善要求に対し十分な措置が講じられていないと判断した場合、次回以降の出展をお断りすることがあります。

  1. 展示および実演による比較表示
  2. 説明パネル・パンフレット等による比較表示
  3. ナレーション等による比較表示
  4. その他の商品・製品・技術等に関する比較表示

6-15. 適正な表示

当協会では展示ブースにおける各種表示について、次の対応をお勧めします。

  1. 安全表示・警告表示
    展示ブースの安全設計の徹底と、ディスプレイに対する適切な安全表示・警告表示をお勧めします。
  2. 使用環境の表示
    製品の展示については、その製品の実際の使用環境に近い展示・演出を基本にディスプレイし、「過度な期待」や「優良誤認」等を与えないよう留意してください。
    なお、実際の使用環境と違う展示については、その旨を表示することをお勧めします。

6-16. 天井照明

展示会場内の照明は300~375ルクス(1-6ホールは水銀灯全灯で450~500ルクスの照明を3/4使用、7、8ホールは照度450~500ルクスのLEDを75%で設定)となります。なお、場所や環境で照度が異なる場合があります。

6-17. 音量規制

ブース内に音響設備などを設置する場合は近隣出展者と事前に話し合い、お互いの迷惑とならないよう音量の確認をしてください。音響機器等を使用してプレゼンテーション等を行う場合は出来る限り時間を区切るようにし、近隣出展者と話し合い、プレゼンテーションマイク音量、並びに、時間の調整を行ってください。緊急放送の際は速やかに音出しを中止してください。

  1. 音量の制限
    80dB以下
  2. 音量測定
    • 測定は原則として、ブースの境界線から2mの場所において測定した音量を規準とします。
    • 測定器はJIS C 1509に準拠する騒音計を使用し、ピークでの測定値を基準とします。
    • 会期中、当協会にて定期的に音量測定を行いますが、開催前日および会期中に自主的な音量測定を行ってください。量測定器は当協会でもご用意いたしますので、必要な場合はお申し出ください。
  3. 音量規制違反出展者への対応
    当協会での音量測定により音量超過が認められた出展者又は周囲への著しい影響の有る重低音等を発する出展者には、改善勧告を行ない、出展者はこれに従わなければなりません。上記規程値内であっても、あきらかに耳障りな音を発し、隣接ブースや来場者より苦情が発生した場合も改善を要求いたします。
    改善されない出展者に対しては下記の罰則を適用します。
    • 改善勧告が通算で3回目となった場合:翌開催日の午前中、音響設備の使用を禁止します。
  4. 運用責任者の常駐
    音響設備の運用責任者はブース内に常駐し、規程に従い音響設備が運用されるように常時管理してください。

6-18. デモ規制

  1. 著作権処理
    展示・実演で音楽の演奏、オーディオ・ビデオの録音物を再生する場合は、著作権に対する処理が必要です。(自社で権利を持つもので、すでに別途権利処理済みのものは不要)
    処理方法は、権利者が権利行使に関する事項を委託している一般社団法人日本音楽著作権協会(JASRAC)等にお問合せください。
  2. 光線・照明
    ブース外の通路や会場躯体にライト等を照射することはできません。また、LEDなどの光力の強い器材をディスプレイやサインに使用する場合、隣接する他社や来場者の迷惑にならないように、十分配慮して設置してください。会場で問題が発生した場合、改善を要求する場合がありますので十分ご注意ください。
  3. スモークマシン
    演出のためのスモークマシン(アルコール、オイル等の石油類を原料としたもの。または炭酸ガス、ドライアイス等を使用したもの)の使用を禁止します。
  4. その他
    実演によって発生することが予想される以下のものについては、あらかじめ予防措置をとり、他の出展者ならびに来場者に迷惑をおよぼさないよう注意してください。
    ①熱気  ②ガス  ③臭気  ④振動

6-19. 危険物の取り扱い

  1. 禁止行為
    消防法により展示場内において以下の行為は禁止されております。
    ①喫煙
    ②裸火の使用(火花を発生させる装置、露出した電熱器などを含む)
    ③石油液化ガス等の可燃性ガスの持ち込み
    ④危険物(ガソリン、灯油、マシン油、重油等)の持ち込み
    ⑤危険物品(火薬類、多量のマッチ・多量の使い捨てライター等)の持ち込み
  2. 禁止行為の解除
    上記の行為のうち、喫煙以外は出展物の実演等のため、必要最小量に限り一定の条件のもと所轄消防署の許可を受けて会場内に持ち込むことができます。禁止行為の解除を希望する出展者は後日(7月)配布する出展者マニュアルでご案内する申請書に必要事項を記入の上、カタログまたは実演状況説明書2部を添付し、ご提出ください。消防署に一括申請し、承認を受けたもののみ会場内に持ち込むことができます。

6-20. 本規程の違反および解釈の疑義について

本規程に違反した出展者および本規程の解釈に疑義が生じた場合の対応は、下記によるものとします。
なお、同規程の解釈は和文規程を優先します。

  1. 実行委員会が、出展者のブースおよびその運営方法について出展規程に違反したと判断した場合には、当協会より出展者に改善の申し入れを行います。
  2. 上記(1)の申し入れを2度行っても改善が図られない場合、また本規程の解釈に疑義が生じた場合には、実行委員会によりその対応を協議し、その最終判断に基づき当該出展者に改善を命じます。なお、この協議による結論は最終決定とし、出展者は異議申し立てや損害賠償請求の申し立てをすることはできません。
  3. 上記(2)により改善の申し入れを受けた出展者は、即日、改善内容および改善を行う日程等を文書で当協会に提出してください。
  4. また、(2)により改善の申し入れを受けた出展者が上記(3)の対応と改善策を講じない場合、もしくは、実行委員会がその改善内容が不十分であると認めた場合、下記の罰則を適用する場合があります。
    ①翌開催日以降の実演・出展活動の禁止。
    ②上記①の処分を守らなかった場合は、この事実を公表するとともに、当該出展者の次回「CEATEC」への出展を認めないことがあります。

6-21. その他

  1. 本出展規程以外の規制および制限事項は、後日(7月)配布する「出展者マニュアル」に明記しますので、あわせて遵守してください。
  2. 出展料を含む全ての経費について手形によるお支払いはお断りします。
  3. 本規程は、主催者、実行委員会および当協会が必要と認めた場合、その一部を変更することがあります。その場合、変更された規程内容は、「CEATEC公式Webサイト」その他の方法で出展者に告知します。
  4. 出展者は各自日本国の法令を遵守するものとし、主催者、実行委員会および当協会は、出展者の法令違反につき何らの責任を負わないものとします。

6-22. 実行委員会

実行委員会は、出展者の代表者で構成された、本展示会における規程や企画など、運営に関する事項を審議し、決定する機関です。なお、準備期間・会期中は実行委員が会場に常駐し、出展環境の維持、問題の処理、出展規程の徹底に当たり、問題が発生した際にその処理を行う権限を有します。

一般展示(General Exhibits)出展規程
PDFダウンロード

出展のご相談はお気軽に

専門スタッフが貴社に最適なプランをご提案いたします