CEATEC

  1. TOP
  2. Participation Menu
  3. General Exhibits

Participation Menu General Exhibits

Area for technologies, solutions, and services addressing societal challenges

Main visual image for General Exhibits page

Exhibit Scope

Technologies / Concepts / Total Solutions / Products, Components, etc. aimed at addressing societal challenges.

Purpose of Participation

  • To communicate company vision, new business models and concepts
  • To show one’s multiple business division and capability
  • To showcase electronic components organized by application area
  • To explore new markets and use cases for emerging devices and technologies

Exhibit Fee & Booth Standards

Standard Booth

Exhibit Fee
For JEITA/CIAJ/SAJ members JPY 396,000/booth (including consumption tax)
For General companies/organizations JPY 440,000/booth (including consumption tax)
Booth Standards
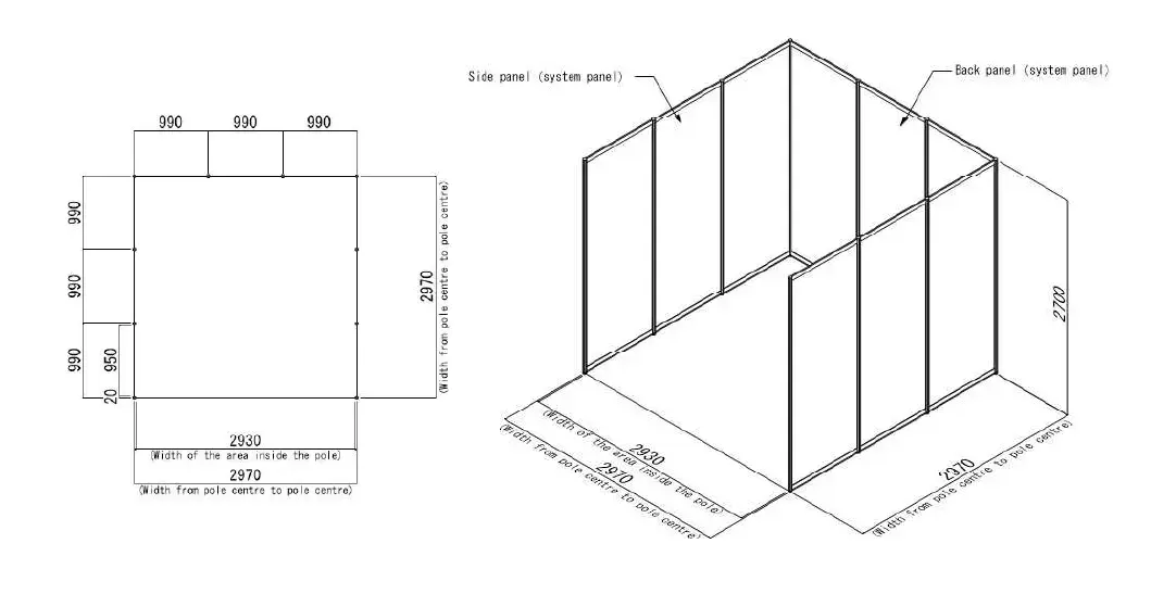
1-18 booths (standard for one- to four-row booths)
  1. Each booth will have a width of 3m x depth of 3m.
  2. Exhibitors in row booths will be provided with a back panel on the rear side of the booth.
  3. The organizer will install the system panel on the side panel adjacent to the booth and the side panel adjacent to other companies. System panels will not be installed on the aisle side of corner booths and independent booths.
Standard Booth: 1-18 booths (standard for one- to four-row booths)
20 booths or more (block booths)
  1. Each booth is 9m², and the total area is 9m² × the number of booths, with the frontage ranging from 2:1 to 1:1 for the depth.

Please refer to the「Exhibition Regulations」 for details.

Small Package Booth

Exhibit Fee
1 booth JPY 220,000 (including consumption tax)
2 booths JPY 440,000 (including consumption tax)

A flat rate is applied regardless of whether you are a member or not.

Maximum of 2 booths can be applied for, so if you want a larger space, please select a standard booth (please note that there is no basic decoration).

No alterations to package booth structures (e.g., removing or changing panels) are permitted. Any work that may affect adjacent booths is prohibited.

Specification of Small Package Booth
Width 2m x Depth 2m x Height 2.7m / 1 booth
All of the following are included as basic decorations.
  • Foundation Wall
  • Display stand (height 975mm, with lower storage)
  • Parapet for company name display (300mm wide)
  • Company name cutting sheet
  • LED Seamless Light
  • Single-phase 100 V power supply with a capacity of up to 1 kW
  • Electricity usage fee (up to 1kW free of charge)

Please refer to the「Exhibition Regulations」 for details.

Small Package Booth

General Exhibits Apply to Exhibit

Exhibit Application Here

Feel free to consult us about exhibiting

Our specialists will propose the best plan for your company